Лучшее агентство
недвижимости
Заказать звонок

Дом, Россия, Вологодский муниципальный округ, село Первомайское, Фёдоровская улица, 170 м², 12 соток

Описание
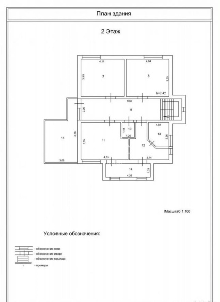
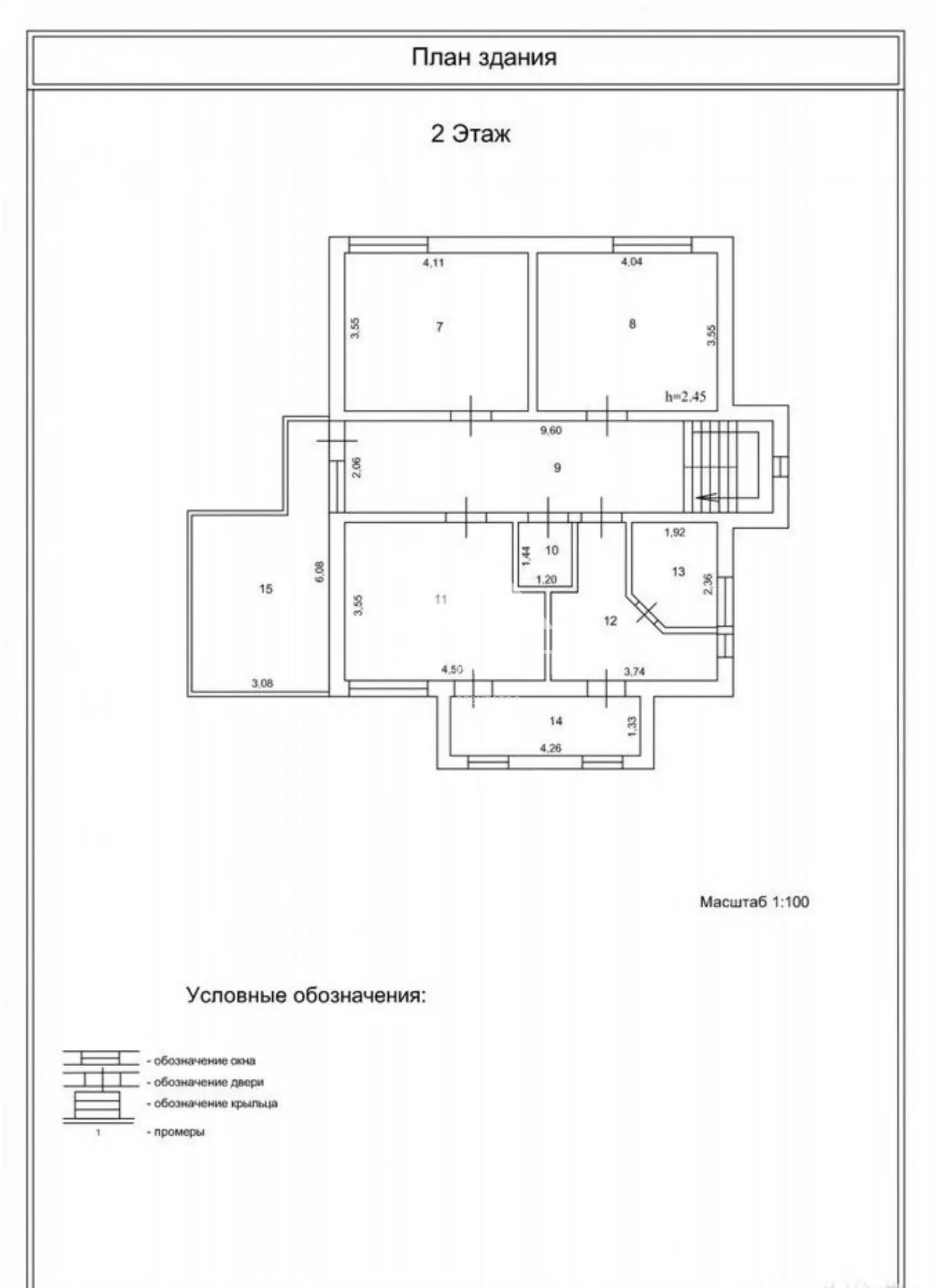
Код объекта: 2044224. Уникальное предложение для ценителей загородной жизни: продаётся новый каркасный дом в селе Первомайское, Вологодский муниципальный округ, по адресу: улица Фёдоровская. Дом построен в 2025 году, общая площадь — 170 кв. м, площадь участка — 12 соток. Высота потолков — 3 метра, что создаёт ощущение простора и свободы. Дом двухэтажный, имеет 4 комнаты и просторную кухню-гостинную, идеально подойдёт для большой семьи. Технические характеристики дома: 170 кв м полезной площади + 50 кв м террасы, участок правильной формы 12 сот. Кадастровый номер З/У 35:25:0704026:512 Зaвод Каpкacнoгo Дoмостpоeния "NovaDom". Coвpемeнный скандинaвcкий стиль: ✔️Фундамент: железобетонные сваи 4м; ✔️Отделка фасадов комбинированная (метал, дерево); ✔️Утепление стен: плитный утеплитель Парок (Раrос) 200мм; ✔️Крыша: односкатная, профнастил, утепление Парок (Раrос) 350 мм; ✔️Окна мультистекло, 2х камерные 74 профиль с ламинацией; ✔️Проложены вентиляционные каналы для естественной вентиляции, выполнена подготовка под установку рекуперационной машины; ✔️ Покрытие пола ГВЛ, Стены гипсокартон, входная дверь утепленная,, балки перекрытия двутавровая балка из клееной 25 мм фанеры, звукоизоляция 150 мм, пол ГВЛ; ⚡️ Электричество (сделано без разводки по дому ) Возможность газификации (газ на границе участка ) Вся инфраструкткра в непосредственной близости - 1 км от п.Грибково ( в Грибково имеется аптека, Сбер,банкоматы,магазины,сады , спортивный фок и строится рыб ферма ) Так же организован школьный автобус 🚌 для детей . Участок имеет статус индивидуального жилищного строительства, подъезд к участку — грунтовка. Это отличный выбор для тех, кто хочет построить свой идеальный дом и создать уютное пространство для жизни. Дом продаётся без отделки, что даёт возможность воплотить любые дизайнерские идеи. Позвоните нам прямо сейчас, чтобы узнать больше об этом объекте и записаться на просмотр. Мы гарантируем безопасную сделку и юридическую поддержку нашим клиентам. Поможем одобрить ипотеку с сниженной ставкой. ТОРГ реальному покупателю ( в разумных пределах) Один собственник. Быстрый выход на сделку. Без долгов и обременений.
Показать полностью Скрыть
Детали
Общая площадь 170 м²
Площадь участка 12
Все детали Скрыть
7 200 000 ₽
Площадь
170 м²
Участок
12 соток
Россия, Вологодский муниципальный округ, село Первомайское, Фёдоровская улица
№ объекта: 7489230474
Ответственный агент
Елена
Тарбакова
14 объектов
Ответственность перед клиентами застрахована
Консультации бесплатны, оплата за результат
«Золотой партнёр 2021» — по версии Сбер банка
Елена Тарбакова
+79211212980
Объект № 7489230474, пожалуйста сообщите номер недвижимости менеджеру.
Похожие объекты
Россия, Вологодская область, Сокольский муниципальный округ, деревня Оларёво
7 500 000 ₽
Дом 127.6 м² 20 соток
Россия, Вологодская область, Сокольский муниципальный округ, деревня Оларёво
Россия, Вологодский муниципальный округ, деревня Елгино, коттеджный посёлок Елгино
5 200 000 ₽
Дом 76.5 м² 18 соток
Россия, Вологодский муниципальный округ, деревня Елгино, коттеджный посёлок Елгино
Россия, Вологодский муниципальный округ, садоводческое товарищество Теремок
2 100 000 ₽
Дом 55 м² 20 соток
Россия, Вологодский муниципальный округ, садоводческое товарищество Теремок
Россия, Удмуртская Республика, Воткинск, Совхозная улица, 35
2 150 000 ₽
Дом 35.2 м² 6.7 соток
Россия, Удмуртская Республика, Воткинск, Совхозная улица, 35
Новые квартиры
Россия, Вологодский муниципальный округ, посёлок Федотово, 2
600 000 ₽
Квартира 43.3 м² 2 комнаты 3/5 этаж
Россия, Вологодский муниципальный округ, посёлок Федотово, 2
Россия, Вологда, Новый переулок, 16
9 000 000 ₽
Квартира 130.5 м² 3 комнаты 4/4 этаж
Россия, Вологда, Новый переулок, 16
Россия, Вологда, Дальняя улица, 24
4 600 000 ₽
Квартира 42 м² 1 комната 9/9 этаж
Россия, Вологда, Дальняя улица, 24
Россия, Вологда, Зосимовская улица, 64
10 800 000 ₽
Квартира 77 м² 3 комнаты 9/12 этаж
Россия, Вологда, Зосимовская улица, 64