Лучшее агентство
недвижимости
Заказать звонок

-комн. квартира, Россия, Вологда, улица Леденцова, 3Б, 123.3 м², 6/7 этаж

Описание
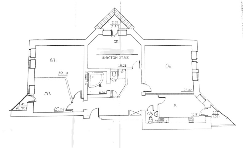
Код объекта: 2037001. Продаётся уникальная четырёхкомнатная квартира в исторической, центральной части города Вологды по адресу: улица Леденцова, 3Б ( район высокого комфорта проживания, с парковыми насаждениями) — идеальный выбор для большой семьи или тех, кто ценит простор и комфорт. Квартира расположена на шестом этаже семиэтажного кирпичного дома, построенного в 2014 году. Благодаря высокому качеству строительства и надёжным железобетонным перекрытиям, жильё отличается отличной шумо- и теплоизоляцией. Индивидуальный котёл обеспечивает эффективное отопление, экономию бюджета на содеожание жилья, а высокие потолки в три метра создают ощущение простора и свободы. Общая площадь квартиры составляет 123,3 кв. метров, жилая — 81,52 кв. м, площадь кухни — 13,9 кв. м. Изолированные комнаты с окнами на улицу и во двор предоставляют отличные возможности для организации пространства по своему вкусу. За счёт больших окон квартира очень светлая, за световой день солнце переходит из одного помещения в другое. Евроремонт придаёт квартире современный вид, а три лоджии увеличивают полезное пространство и позволяют наслаждаться видами ( рядом парк Мира, река Вологда) В квартире новому владельцу остаётся кухонный гарнитур с встроенной техникой. Наземная парковка обеспечивает удобное размещение автомобиля ( парковочных мест хватает на всех жителей дома). Вся инфраструктура в районе есть: супермаркеты, специализированные магазины, аптеки, школа № 20, детские сады, спортивные площадки, детские игровые комплексы, прогулочные зоны и т.д. В шаговой доступности центр Вологды, все исторические места и памятники, храмы и монастыри. Не упустите шанс стать владельцем этой шикарной квартиры в отличной локации! Звоните нам прямо сейчас, чтобы узнать больше и записаться на просмотр. Мы гарантируем безопасную сделку и юридическую поддержку нашим клиентам. Поможем одобрить ипотеку с сниженной ставкой.
Показать полностью Скрыть
Детали
Количество комнат 4+
Общая площадь 123.3 м²
Жилая площадь 81.52 м²
Кухня 13.9 м²
Тип дома Кирпичный
Балкон Нет
Все детали Скрыть
14 500 000 ₽
117 599 ₽ / м²
Площадь
123.3 м²
Квартира
4 комнаты
Этаж
6/7  этаж
Россия, Вологда, улица Леденцова, 3Б
№ объекта: 7329371785
Ответственный агент
Елена
Тарбакова
14 объектов
Ответственность перед клиентами застрахована
Консультации бесплатны, оплата за результат
«Золотой партнёр 2021» — по версии Сбер банка
Елена Тарбакова
+79211212980
Объект № 7329371785, пожалуйста сообщите номер недвижимости менеджеру.
Похожие объекты
Россия, Вологодский муниципальный округ, посёлок Федотово, 2
600 000 ₽
Квартира 43.3 м² 2 комнаты 3/5 этаж
Россия, Вологодский муниципальный округ, посёлок Федотово, 2
Россия, Вологда, Новый переулок, 16
9 000 000 ₽
Квартира 130.5 м² 3 комнаты 4/4 этаж
Россия, Вологда, Новый переулок, 16
Россия, Вологда, улица Гиляровского, 20А
3 090 000 ₽
Квартира 32 м² 1 комната 4/5 этаж
Россия, Вологда, улица Гиляровского, 20А
Россия, Вологда, Дальняя улица, 24
4 600 000 ₽
Квартира 42 м² 1 комната 9/9 этаж
Россия, Вологда, Дальняя улица, 24
Новые квартиры
Россия, Вологодский муниципальный округ, посёлок Федотово, 2
600 000 ₽
Квартира 43.3 м² 2 комнаты 3/5 этаж
Россия, Вологодский муниципальный округ, посёлок Федотово, 2
Россия, Вологда, Новый переулок, 16
9 000 000 ₽
Квартира 130.5 м² 3 комнаты 4/4 этаж
Россия, Вологда, Новый переулок, 16
Россия, Вологда, Дальняя улица, 24
4 600 000 ₽
Квартира 42 м² 1 комната 9/9 этаж
Россия, Вологда, Дальняя улица, 24
Россия, Вологда, Зосимовская улица, 64
10 800 000 ₽
Квартира 77 м² 3 комнаты 9/12 этаж
Россия, Вологда, Зосимовская улица, 64